Aufgabe war die Planung und Errichtung eines neuen Einfamilienhauses in Stutensee.
Die kompakte Bauform mit minimalem Dachüberstand ist eine moderne Interpretation des klassischen Giebelhauses. Die Neuinterpretation wird auch durch die Lebendigkeit der Fassade unterstrichen, die durch variierende Fernstergößen entsteht. Die Fenstergößen sind dabei angepasst an die Räume mit deren spezifische Funktionen und Anforderungen an Licht und Ausblick.
Bei der Wahl der Materialien spielen nachhaltige Baustoffe eine wichtige Rolle, so ist beispielsweise eine Holzfassade geplant und auf den Einsatz von Kunststoffen soll weitestgehend verzichtet werden.
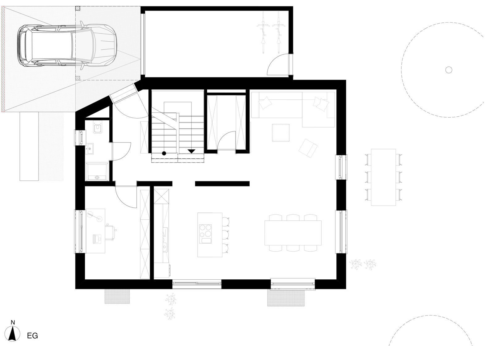
Betreten wird das Haus über eine abgeflachte Ecke, die ihr Vordach von der anschließenden Garage erhält.
Im Erdgeschoss befinden sich die Wohn- und Aufenthaltsräume, die hauptsächlich aus einer großzügigen Wohnküche bestehen. Diese öffnet sich mit großen Verglasungen in den Garten und erweitert sich über eine Terrasse in den Freiraum.
Im Obergeschoss entstehen die Privatenräume wie Elternschlafzimmer und Kinderzimmer sowie ein geräumiges Badezimmer. Die Dachschrägen geben hier den Räumen teils Höhen bis zum Giebel, teils werden sie als Stauraum verwendet.
Die Technikräume, Lager- und Waschräume finden im Keller ihren Platz. Eine Herausforderung für die Ausführung des Kellers ist der hochstehende Grundwasserstand des Gebietes. So muss das Untergeschoss als weiße Wanne ausgeführt werden und während der Bauphase zusätzlich gegen aufschwemmen gesichert werden.
Das Energiekonzept entspricht dem KfW 40 Standard. Durch die Planung von LR Architekten entsteht hier mit dem Anspruch nachhaltige Materialien zu verwenden ein energieeffizientes Einfamilienhaus, dessen Räume auf die Bedürfnisse des Bauherren angepasst sind.





