Haus Markgraf
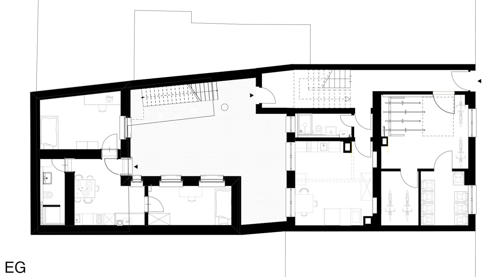
Aufgabe war die Modernisierung und teilweise Erweiterung des aus Vorder- und Hinterhaus sowie Innenhof bestehenden Ensembles mit insgesamt sechs Wohungen. Die Bausubstanz wurde seit der Neuerrichtung nach dem Krieg nicht wesentlich verändert. Ein entsprechender Bauzustand und veraltete Haustechnik sollten in moderne Raumgefüge mit neuesten Standards übersetzt werden. Eine besondere logistische Herausforderung waren die beengten innerstädtischen Verhältnisse mit geringen Anlieferungs- und Lagermöglichkeiten und der sehr schmale Zugang zu dem Hof ohne Einfahrt. Von der Grundstücksfläche sind 75% überbaut und beide Gebäude stehen zu einem großen Teil auf der Grundstücksgrenze.
Hinterhaus
Drei Seiten des Hinterhaus bestehen aus nicht veränderbaren Grenzwänden. In diesem Gebäudeteil wurden die beiden Bestandswohnungen modernisiert und durch eine neue Terrasse bzw. Freifläche ergänzt. Die sehr schlechte Bausubstanz machte eine komplette Überarbeitung der Tragstruktur notwendig. Alle raumbildenden Elemente mussten ertüchtigt oder erneuert werden. Die Lastabtragung erfolgt jetzt stärker über die neuen tragenden Innenwände um den Eingriff an den alten aus Naturstein gemauerten Grenzwänden so gering wie möglich zu halten.
Vorderhaus
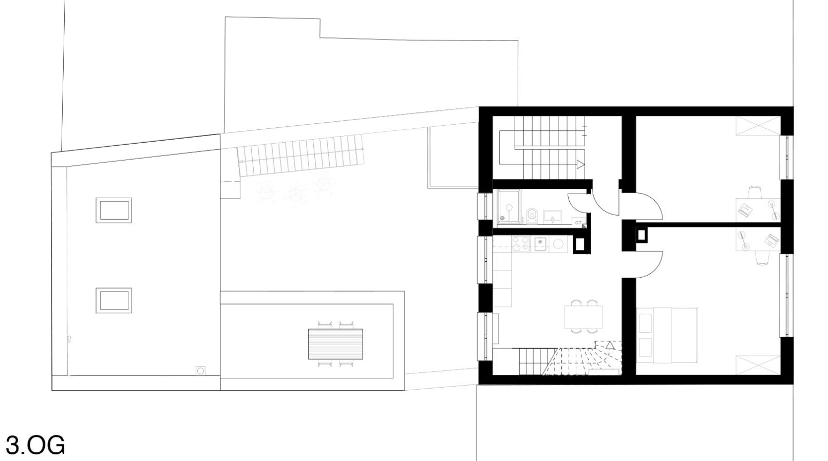
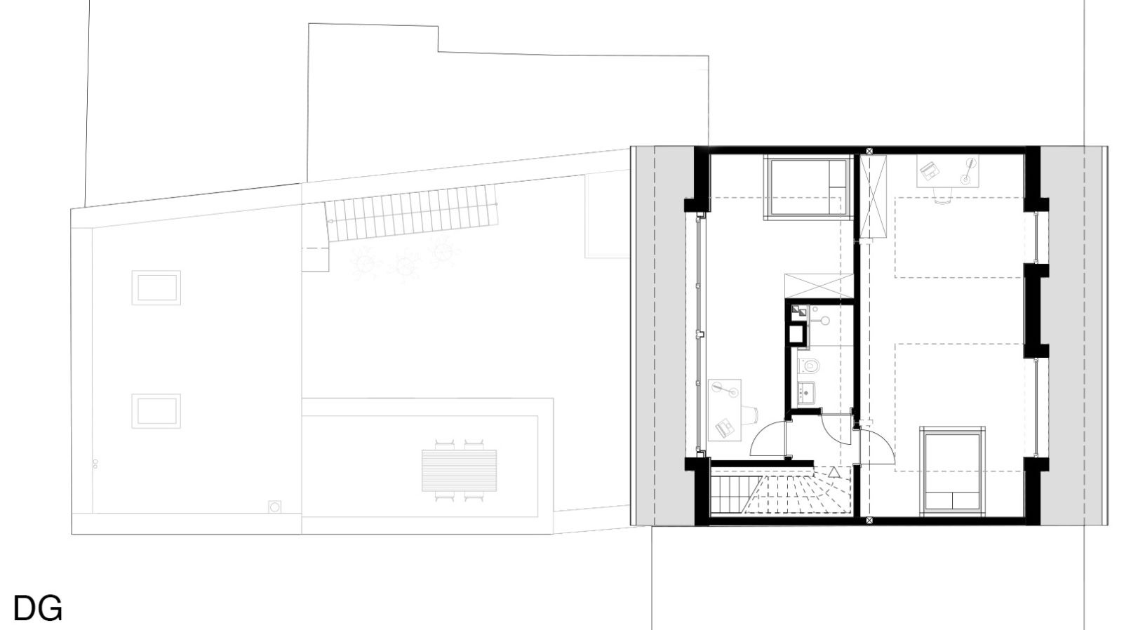
Das Vorderhaus erhält einen neuen und leicht erhöhten Dachstuhl mit Gauben, die eine neue bewohnbare und großzügige Etage schaffen. Diese schließt sich mit der darunterliegenden Ebene als Maisonettewohnung zusammen. Neben der kostengünstigeren inneren Erschließung einer Maisonettwohnung hat diese Vorgehensweise ebenfalls baurechtliche Vorteile. Um die Aufenthaltsqualität der geringen Freifläche zwischen den Gebäuden zu erhöhen sind die Abstellflächen für Mülleimer und Fahrräder im der Straße zugewandten Teil des Erdgeschoss untergebracht. Hierfür ist ein kompaktes Lagersystem mit vertikaler Doppelbelegung für Fahrräder montiert.
Standort
- Innenstadt Karlsruhe
Leistungsphasen
- 1-8
Auftraggeber
- privat
Typ
- Modernisierung Mehrfamilienhaus und Hinterhaus
Status
- abgeschlossen
Projektzeit
- 2018-2019
Konzept Planung Ausführung
- Lorenz Richardt Architekten PartGmbB








