Haus D
Der Doppelhaushälfte aus dem Jahr 1936 wurde einer umfassenden Sanierung und Modernisierung unterzogen. Die Grundrisse und die technische Ausstattung genügten den modernen Ansprüchen an Wohnkomfort und Nachhaltigkeit nicht mehr.
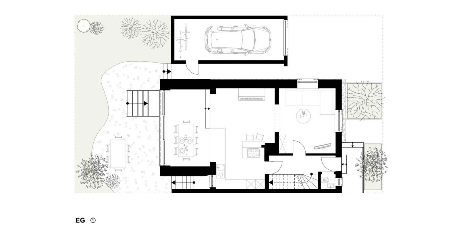
Um die Wohnfläche zu erweitern und die Räume zum Garten zu öffnen, wurde der bestehende Anbau geöffnet und aufgestockt. Neue Gauben erweitern das Dachgeschoss. Alle Maßnahmen wurden ausschließlich in vorfabrizierter Holzbauweise ausgeführt. Die Rohbauarbeiten an Dach und Anbau vor Ort dauerten zwei Tage. Mit den bereits eingefrästen Elektrokanälen und Fensteröffnungen unterstützt diese Bauweise durch die Zeitersparnis eine effiziente Ausführung. Durch den im Verhältnis schmalen Wandaufbau wird innen mehr Nutzfläche gewonnen. Die Konstruktion trägt zu einem angenehmen Wohnklima bei.
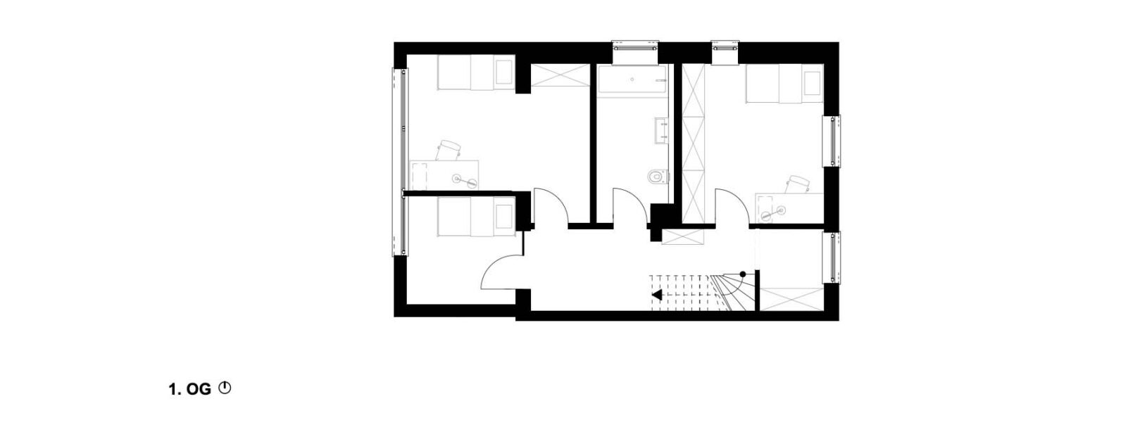
Sowohl die Dachgauben als auch die Aufstockung schaffen zusätzlichen Wohnraum. Das Dachgeschoss wird durch eine großflächige Terrasse auf dem neuen Anbau zum Garten hin geöffnet.
Mit der Straßenfassade wurde der ursprüngliche Charakter des Gebäudes erhalten. Im Gegensatz dazu kann man die Änderungen der Gartenseite deutlich an der modernen Fassade mit großzügigen Fensteröffnungen ablesen. Die Giebelseite nimmt sich deutlich zurück und vermittelt zwischen den anderen Fassaden.
Im Innenraum schafft die Öffnung von Blickachsen durch die Wohnräume einen großzügigen Eindruck im eigentlich kompakten Grundriss. Durch eine Zwischenebene im Anbau wird der Übergang vom erhöhten EG in den Garten angenehmer, da eine lange Treppe mit großem Höhenunterschied vermieden wurde.
Zusätzlich ist das Gebäude auch technisch verbessert. Alle Fenster sind erneuert und durch zusätzliche Fenster in der Nordfassade ergänzt. Eine neue Dämmung verringert die Wärmeverluste der gesamten Gebäudehülle, die gesamte Elektroinstallation erneuert und im Erdgeschoss eine Fußbodenheizung installiert. Ebenfalls musste die gesamte Heiz- und Sanitärinstallation neu verlegt werden. Das Resultat aller Maßnahmen führt zu einem Gebäude, das den aktuellen energetischen Anforderungen entspricht. Die energetischen Eingriffe wurden gefördert.
Das von LR Architekten erarbeitete Konzept schafft Wohnraum mit zeitgemäßen Grundrissen auf drei Etagen. Dabei bleibt der Eingriff in die Bausubstanz minimal, und der ursprüngliche Charakter des Gebäudes wurde erfolgreich bewahrt.
STANDORT
- Stadt Karlsruhe
LEISTUNGSPHASE
- 1-8
AUFTRAGGEBER
- privat
TYP
- Modernisierung/ Erweiterung Doppelhaushälfte
- Erweiterung - Vollholz vorfabriziert
STATUS
- abgeschlossen
PROJEKTZEIT
- 2022-2023
KONZEPT PLANUNG AUSFÜHRUNG
- Lorenz Richardt Architekten PartGmbB









